九州・福岡のテント業者はT-PLUS! デザイン・設計から製作・工事まで自社にて完結!
九州・福岡 テント工事・シート加工業者をお探しなら! 店舗テント・オーニングテント・間仕切りカーテン・シート加工・各種カバー製作

HOME | 固定ひさしテント

固定ひさしテント

固定ひさしテントとは

今も昔もお店つくりには欠かせないテント

スチールパイプ等でフレーム(骨組み)を作り、テントのシートを被せて製作します。フレームをシートで被う構造となる為、防水性に優れ、デザインの自由性にも優れています。特に一般的な固い屋根材には出来ないシートならではの曲線に強いのが特徴です。

赤のまるいテント


テントの形はいろいろ。

どんな形でもオーダーメイド製作

現地調査・打合せの後、見積りと同時に見積図面、製作時には製作図面を作成し、必要であればパース図を作成します。
シートは生地カタログ(実際の生地が貼られてます)から選定して頂きます。
 

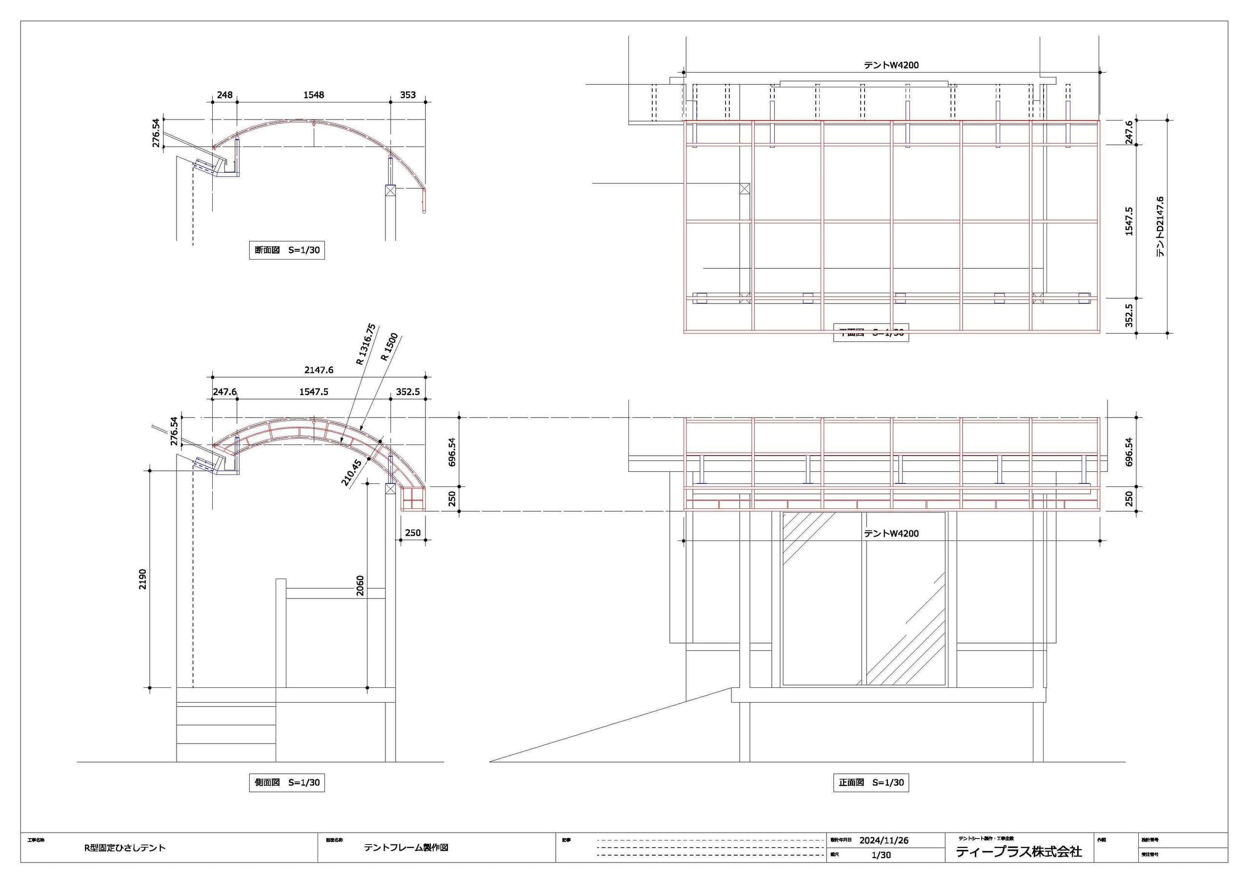
テントフレーム製作図面 テントフレーム製作図面

テントフレーム製作図面

生地カタログ 生地カタログ

テイジン ニューパスティ カタログ

生地カタログ 生地カタログ

テイジン ニューパスティストライプ カタログ

生地カタログ2 生地カタログ2

テイジン シャガール カタログ

生地カタログ 生地カタログ

テイジン シャガールアートカタログ


テント設置までの流れ

出来るだけわかりやすくご要望にあった『テント』をご提案します。

お見積りは無料にてお伺いいたします!

施工までの流れ画像

≪施工事例≫

グレーの店舗ひさしテント

店舗ひさし

赤のひさしテント

店舗ひさし

透明の屋根テント

透明階段屋根

青のひさしテント

店舗ひさし

店舗の黄色テント

店舗ひさし

黒のひさしテント

店舗ひさし

青の仕切りテント

飛沫防止仕切り

青のひさしテント

店舗飲食スペース

黒のテント

店舗ひさし

緑のテント

店舗ひさし

青のテント屋根

住宅ひさし

ピンクのひさしテント

店舗ひさし

白の屋根テント

バックヤード屋根

ストライプの屋根

店舗ひさし

シルバーのテント屋根

灯油販売屋根

透明のシート

バックヤード仕切り

青の日除けシート

住宅目隠し日除け

白のテント

倉庫ひさし屋根

透明間仕切りシート

マンション廊下の目隠し

水色のテント

ベンチ屋根